
type_exhibitionSpace
site_Dumbarton Castle, Scotland
period_10weeks
year_2014
tutor Stuart Dickson
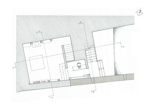
Dumbarton Castle is located in between two cliffs, which are creating natural boundaries and providing the inhabitants with privacy and security. The only way to reach any point of the place is by stairs. The staircases throughout the site play significant role for the visitor experience, as they are paths leading them on their journey.
When I was asked to create a building on this site, the first thing that came to my mind was how to compliment the appearance and sense of place and how the site could be emphasized through the architectural design of the new exhibition centre. The proposal represents the stairwell as not only an important part of the building, but also as a building itself. In this way, I used the building to connect all the different levels around and to give the visitors the opportunity to start experiencing the place from the very beginning.
Project_PlaceInTime





SITE ESSENTIALS


SITE PLAN
SITE PLAN



ELEVATION
GROUND FLOOR PLAN
PLAN BASEMENT

FIRST FLOOR PLAN

BIRD EYE VIEW

SECTION A-A
SECTION B-B
SECTION C-C



MODEL
